This elegant four-bedroom semi-detached home on Radcliffe Road offers an exceptional combination of period charm and contemporary living. Set behind a generous frontage with a private driveway, the house presents beautifully with its handsome brick façade, character detailing and well-tended front garden. The property benefits from double glazed sash windows throughout, enhancing both comfort and energy efficiency while remaining sympathetic to the period aesthetic.
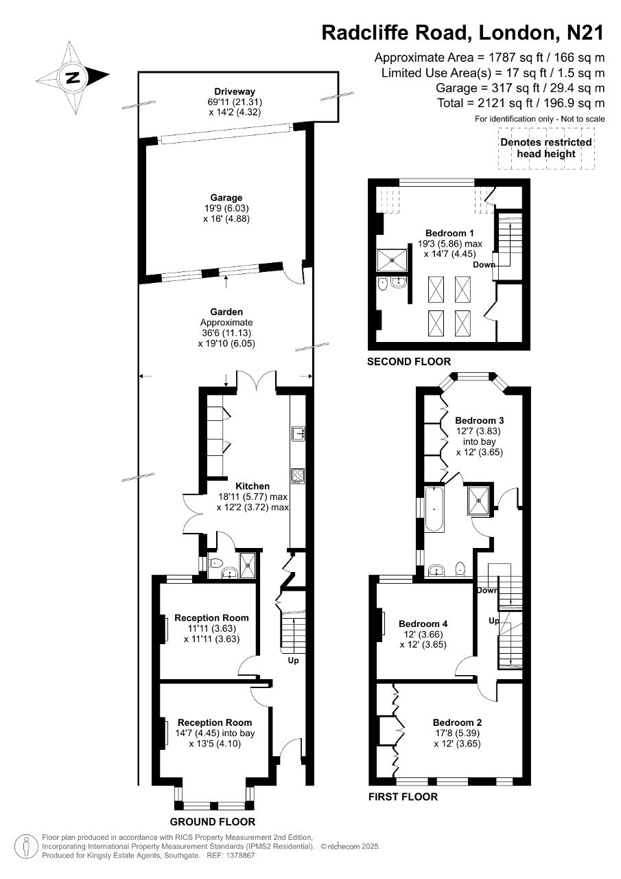
The ground floor provides two well-proportioned reception rooms, both retaining period character with high ceilings, feature fireplaces and large bay windows that allow natural light to flow throughout. The spacious kitchen sits at the heart of the home and has been thoughtfully designed with a blend of modern cabinetry, stainless steel finishes and direct access to the rear garden, creating an inviting space for both everyday use and entertaining. The garden itself offers a peaceful and private setting with mature borders, a patio area and direct access to the sizeable detached garage positioned at the end of the plot.
Across the upper floors the home provides four generous bedrooms arranged over the first and second floors, together with a family bathroom and additional shower facilities. The main bedroom on the top floor benefits from excellent proportions, natural light and an en-suite arrangement, while the remaining rooms offer flexible accommodation suitable for family living, home working or guest use. The property has been well maintained throughout and presents a rare opportunity to purchase a substantial family home in one of Winchmore Hill"s most desirable residential roads.
Radcliffe Road is perfectly positioned within the highly regarded Winchmore Hill area, known for its village atmosphere, attractive period streets and strong community feel. The property lies within easy reach of Winchmore Hill Green, where a selection of independent cafés, restaurants and boutique shops can be found, providing a welcoming local centre for day-to-day conveniences. The wider area offers a number of well-known retailers including Marks & Spencer, Sainsbury"s, Waitrose and various independent grocers, all within convenient reach for everyday shopping.
The area is particularly sought after for its excellent selection of schools. The property falls within the catchment of several highly regarded primary and secondary schools, including St Paul"s CofE Primary School, Highfield Primary School and Winchmore School, making the location well suited for families seeking strong educational provision.
Transport links are excellent, with Winchmore Hill railway station offering direct services to Moorgate, and Grange Park station also close by. Several bus routes connect the area to nearby neighbourhoods, while the A10 and North Circular Road provide straightforward access for motorists.
Families are well catered for with numerous parks and open spaces, including Groveland's Park with its picturesque lake and woodland. Local amenities such as supermarkets, fitness centres and medical facilities are all easily accessible, contributing to the area"s strong appeal as a well-connected and comfortable residential location.
For further information on this property please call 02088844844 or e-mail [email protected]
